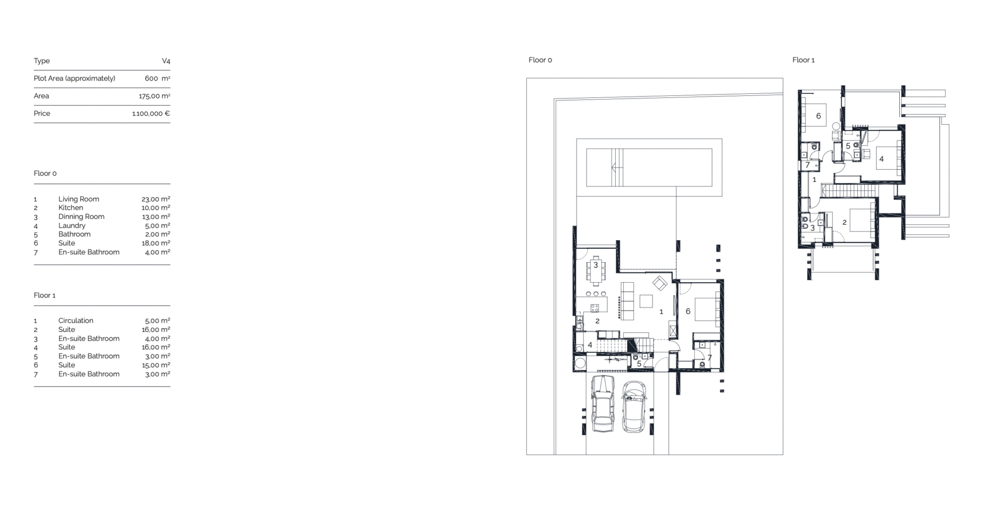
Villa

Villa V4 Duplex

Piętrowa willa z czterema sypialniami ensuite, salonem oraz kuchnią.

Villa V4 Duplex

Przestrzeń na dwóch poziomach, wyjątkowy komfort i stylowa funkcjonalność.

Ta stylowa, przestronna willa z czterema sypialniami została stworzona z myślą o maksymalnym komforcie życia i subtelnej elegancji. Na parterze znajduje się duży, jasny salon z bezpośrednim wyjściem do ogrodu oraz otwarta, w pełni wyposażona kuchnia, która doskonale sprawdza się zarówno na co dzień, jak i podczas przyjęć w gronie rodziny i przyjaciół. Cztery sypialnie typu ensuite, rozmieszczone na dwóch poziomach, oferują pełną prywatność, przestrzeń i wygodę dla wszystkich domowników oraz gości.

Architektura willi opiera się na nowoczesnym minimalizmie inspirowanym naturą – dominują naturalne materiały, takie jak drewno, oraz paleta stonowanych, ziemistych kolorów. Całość harmonijnie wpisuje się w otaczający krajobraz, tworząc atmosferę spokoju i wyrafinowania. Przestronny ogród z prywatnym basenem i tarasem wypoczynkowym to idealne miejsce na relaks i kontakt z naturą. Prywatne miejsce parkingowe na dwa samochody dopełnia funkcjonalności tej wyjątkowej nieruchomości. To idealna propozycja dla tych, którzy szukają luksusowego stylu życia w spokojnym, naturalnym otoczeniu.

  • Godzina drogi od Lizbony
  • Całodobowa recepcja, obsługa concierge, ochrona i monitoring
  • Prywatny ogród z basenem
  • Prywatne miejsce parkingowe na terenie posesji
  • Pole golfowe, akademia golfowa, Lounge dla członków.
  • Kompleksowe zarządzanie nieruchomościami
  • Korty do tenisa oraz padla na terenie resortu
Ocean & Golf Resort

Spokój w połączeniu z dyskretną elegancją.

Ocean & Golf Resort to adres dla tych, którzy szukają czegoś więcej niż tylko domu – to styl życia oparty na bliskości natury, spokoju i aktywności. Usytuowany na przepięknym, klifowym wybrzeżu, w jednym z najpiękniejszych regionów Portugalii, resort łączy w sobie prywatność i elegancję, oferując idealne warunki do wypoczynku, aktywności sportowych i życia w wolniejszym rytmie. Na terenie resortu znajduje się jedno z najpiękniejszych pól golfowych w Europie, z panoramicznymi widokami na wybrzeże, a także nowoczesne korty tenisowe i do padla. W pobliżu znajdują się również światowej klasy spoty surfingowe, i kitesurfingowe przyciągające pasjonatów sportów wodnych z całego świata. Mieszkańcy mają dostęp do całodobowej ochrony, profesjonalnej obsługi concierge oraz usług dopasowanych do najwyższych standardów.

Architektura i urbanistyka resortu zostały zaprojektowane z myślą o harmonii z naturalnym krajobrazem – z poszanowaniem lokalnej przyrody, zrównoważonym podejściem i dbałością o detale. Bliskość oceanu oraz laguny Óbidos, będącej jednym z najlepszych miejsc do uprawiania kitesurfingu w Portugalii, przestrzenie pełne zieleni oraz cisza i prywatność sprawiają, że Ocean & Golf Resort to miejsce, w którym luksus spotyka się z autentycznym spokojem. To nie tylko inwestycja w nieruchomość – to inwestycja w styl życia.

Plan
Status
Gotowe
Cena
€1.100.000
Rozmiar
175 m2
Pokoje
4
Numer oferty
-

Kontakt

Porozmawiajmy

Jeżeli masz jakiekolwiek pytania dotyczące SMARTPLACE, albo już wiesz, że chcesz żebyśmy dla Ciebie pracowali, oto jak się z nami skontaktować: